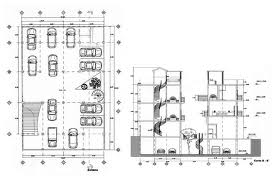
Previous Image Siguiente imagen diseño_estac Diseño y planificación de estacionamientos Me gusta Cargando...